Follow us on Twitter
Price
$2,100,000.00
Commission Type
Broker to Broker Commission @ 3%

Property Description

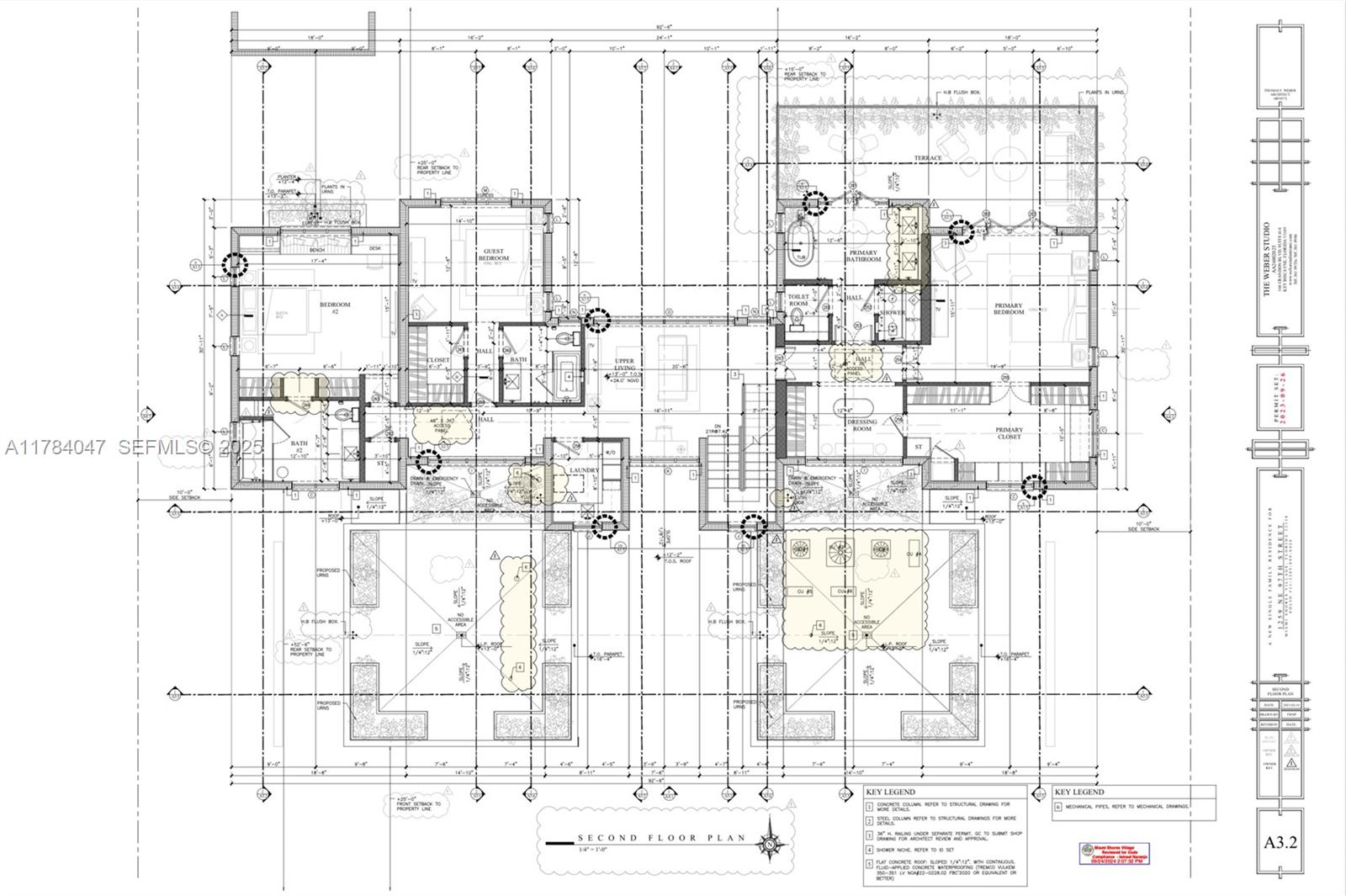
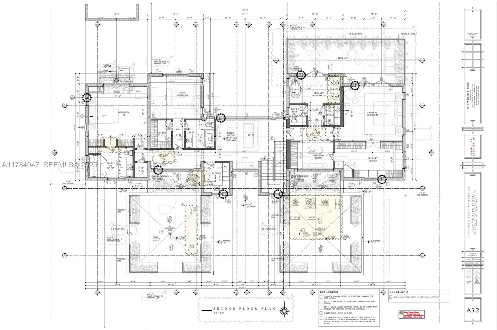
Welcome to Nobel House — a fully approved DOUBLE LOT DEVELOPMENT OPPORTUNITY WITH PLANS & ACTIVE BUILDING PERMITS. SHOVEL-READY — START CONSTRUCTION IMMEDIATELY. Save two years of design, planning & permitting. ***Priced below the total costs to acquire, design, permit, and prepare the property to its current build-ready condition*** Located on a 12,300 SF double lot east of Biscayne, just three lots from the open bay. Fully approved plans deliver a 5,650 SF residence — among the LAST SET OF PLANS APPROVED UNDER PREVIOUS ZONING RULES ALLOWING NEARLY 1K MORE BUILDABLE AREA THAN WOULD BE PERMITTED TODAY UNDER CURRENT ZOMING RESTRICTIONS. Sale includes all approved architectural, engineering, and interior design plans. Site cleared, rough graded, and ready to build — bring you GC, temporary power and start construction. ***VIRTUAL VIDEO TOUR TO EXPERIENCE***

Overview

Property TypeResidential
Location1259 NE 97th St
MLS IDA11784047
Market Date2025-04-15

Property Features & Amenities

Interior

Total Bedrooms
5
Full Bathrooms
4

Exterior

Stories
Air Conditioning
Central Air,Ceiling Fan(s),Zoned
Other Exterior Features
Security/High Impact Doors,Patio

Details

Neighborhood
EARLETON SHORES
Utilities